-0%
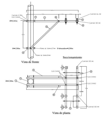
ARMADO TIPO PSEC-1 MONOFASICOS DE SECCIONADORES GALV CALIENTE ARAGCU AR1

ARMADO TIPO PSEC-1 MONOFASICOS DE SECCIONADORES GALV CALIENTE ARAGCU AR CONSULTAR STOCK POR SUCURSAL

ARAGCU ARMADOS
USD 0.00

Armados de estructuras de redes secundarias.
Líneas y redes primarias.
Soportes normalizados para líneas y redes primarias y secundarias.
Estos armados definen las condiciones técnicas mínimas para el diseño de líneas y redes primarias aéreas en 22,9 kV y 22,9/13,2 kV, de tal manera que garanticen los niveles mínimos de seguridad para las personas y las propiedades, y el cumplimiento de los requisitos exigidos para un sistema económicamente adaptado.
Las dimensiones en mm
- Todos los Elementos son Galvanizados por inmersión en caliente, según ASTM A. 153 - 82
- LA FABRICACIÓN DE BASTIDORES SE HARÁ DE ACUERDO AL REQUERIMIENTO  DEL CLIENTE


FICHA TÉCNICA

Tipo de productoArmado Monofasico
ModeloPSEC-1
MaterialFierro
AcabadoGalvanizado en caliente


También Podría Interesarte