-0%
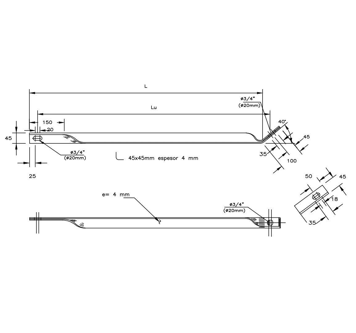
DIAGONAL DE F°G° 4X45X45MM 1.07MTS D1BR0221 ARAGCU AR1
DIAGONAL DE F°G° 4X45X45MM 1.07MTS D1BR0221 ARAGCU AR2

DIAGONAL DE F°G° 4X45X45MM 1.07MTS D1BR0221 ARAGCU AR CONSULTAR STOCK POR SUCURSAL

ARAGCU ARMADOS
USD 37.00
Los perfiles angulares son un producto laminado en frío y se fabrican a partir de una chapa, tras un proceso de plegado. Tienen ambos lados iguales cuya sección es un ángulo recto, o lo que es lo mismo, su unión posee forma de ángulo de 90º, de ahí su calificativo de “angulares”. En los perfiles angulares las caras de las alas son paralelas y su unión está redondeada. El uso de los perfiles angulares está muy extendido en el ámbito de la construcción, tanto en la elaboración de estructuras como en la construcción de edificaciones, pero también son empleados en el sector del comercio, la industria y también en maquinaria.


 
MarcaARAGCU
TipoDiagonal
CódigoD1BR0221
Peso3.70kg
Medida4X45X45MM 1.07MTS
AcabadoGalvanizado galvanizado ASTM A-153/A-123
NormativaAcero estructural ASTM A-36


FICHA TÉCNICA


También Podría Interesarte