-0%
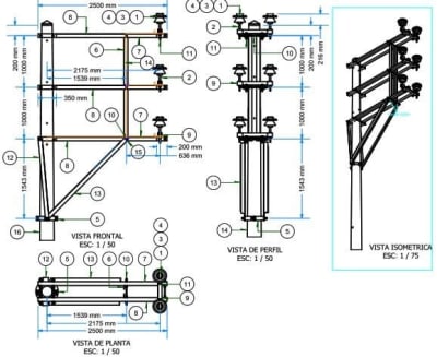
SOPORTE SEPARADOR DE CRUCETA DE 64X64 X1076MM ESP: 6.4MM GALV CALIENTE ARAGCU AR1

SOPORTE SEPARADOR DE CRUCETA DE 64X64 X1076MM ESP: 6.4MM GALV CALIENTE ARAGCU AR CONSULTAR STOCK POR SUCURSAL

ARAGCU ARMADOS
USD 0.00
MaterialAcero SAE   1020
Norma   de fabricacionUNE 207009-2002 / UNE-EN 61284
AcabadoGalvanizado en Caliente. Norma:   ASTM - A153
Norma   de GalvanizadoASTM A 153
Norma   de InspecciónNTP-ISO 2859-1 1999
Resistencia   de Tracción55 kn
Tipo de   AcopleIEC 60120 - Clase 16 / ANSI   C29.2 Tipo B
NormaUNE 21-158-90


FICHA TÉCNICA

También Podría Interesarte