-0%
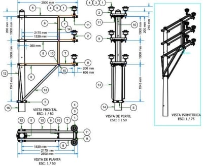
ARMADO TIPO AU1 MONOFASICO DE MEDIA TENSION GALV CALIENTE ARAGCU AR

ARMADO TIPO AU1 MONOFASICO DE MEDIA TENSION GALV CALIENTE ARAGCU AR CONSULTAR STOCK POR SUCURSAL

ARAGCU ARMADOS
USD 0.00
"Desde el proceso de generación de energía eléctrica, su transmisión y distribución a nivel local, Suministro de energía a instalaciones y equipos de uso final que suple las necesidades energéticas del comercio, la industria. Distribución primaria: Se denomina distribución primaria a las redes y estructuras asociadas, generalmente toman energía desde subestaciones de distribución con capacidad suficiente para abastecer zonas geográficas dentro de áreas pobladas Distribución secundaria: Se denomina distribución secundaria a las redes eléctricas y estructuras asociadas, que toman energía desde transformadores de distribución con capacidad suficiente para uno o varios usuarios  


FICHA TÉCNICA


Tipo de   productoArmado Monofasico
ModeloAU1
MaterialFierro
AcabadoGalvanizado en caliente


También Podría Interesarte