-0%
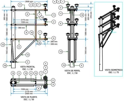
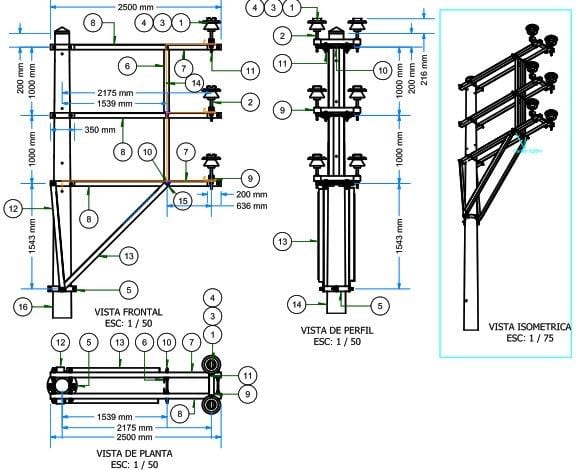
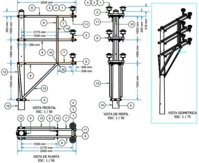
SOPORTE DE MANIOBRA PARA SECCIONAMIENTO TIPO I INC ACC MT-73 GALV CALIENTE ARAGCU AR1

SOPORTE DE MANIOBRA PARA SECCIONAMIENTO TIPO I INC ACC MT-73 GALV CALIENTE ARAGCU AR CONSULTAR STOCK POR SUCURSAL

ARAGCU ARMADOS
USD 0.00
Desde el proceso de generación de energía eléctrica, su transmisión y distribución a nivel local, Suministro de energía a instalaciones y equipos de uso final que suple las necesidades energéticas del comercio, la industria. Distribución primaria: Se denomina distribución primaria a las redes y estructuras asociadas, generalmente toman energía desde subestaciones de distribución con capacidad suficiente para abastecer zonas geográficas dentro de áreas pobladas Distribución secundaria: Se denomina distribución secundaria a las redes eléctricas y estructuras asociadas, que toman energía desde transformadores de distribución con capacidad suficiente para uno o varios usuarios


 

FICHA TÉCNICA


Tipo de   productoArmado soporte
ModeloI INC ACC MT-73
MaterialFierro
AcabadoGalvanizado en caliente

También Podría Interesarte