-0%
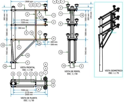
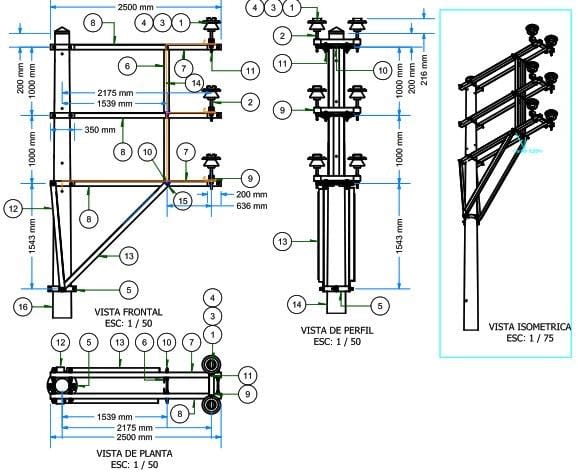
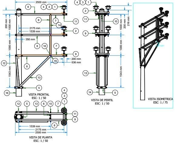
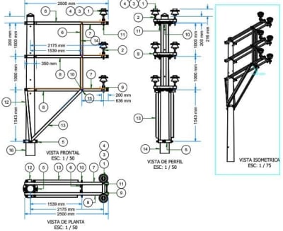
SOPORTE DE MANIOBRA PARA SECCIONAMIENTO TIPO II INC ACC MT-74 MT-75 - MT-76 GALV CALIENTE ARAGCU AR1

SOPORTE DE MANIOBRA PARA SECCIONAMIENTO TIPO II INC ACC MT-74 MT-75 - MT-76 GALV CALIENTE ARAGCU AR CONSULTAR STOCK POR SUCURSAL

ARAGCU ARMADOS
USD 0.00
Desde el proceso de generación de energía eléctrica, su transmisión y distribución a nivel local, Suministro de energía a instalaciones y equipos de uso final que suple las necesidades energéticas del comercio, la industria. Distribución primaria: Se denomina distribución primaria a las redes y estructuras asociadas, generalmente toman energía desde subestaciones de distribución con capacidad suficiente para abastecer zonas geográficas dentro de áreas pobladas Distribución secundaria: Se denomina distribución secundaria a las redes eléctricas y estructuras asociadas, que toman energía desde transformadores de distribución con capacidad suficiente para uno o varios usuarios 


FICHA TÉCNICA

Tipo de   productoArmado maniobra para seccionamiento
ModeloTIPO II INC ACC MT-74 MT-75 - MT-76
MaterialFierro
AcabadoGalvanizado en caliente

También Podría Interesarte