-0%
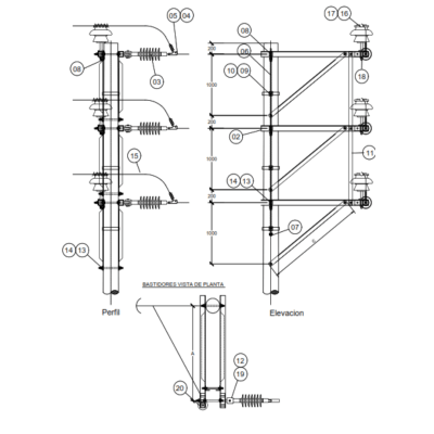
BASTIDOR PREFABRICADO CON PERFILES TIPO II MT-66 - MT-67 GALV CALIENTE ARAGCU AR1

BASTIDOR PREFABRICADO CON PERFILES TIPO II MT-66 - MT-67 GALV CALIENTE ARAGCU AR CONSULTAR STOCK POR SUCURSAL

ARAGCU ARMADOS
USD 0.00

Desde el proceso de generación de energía eléctrica, su transmisión y distribución a nivel local, Suministro de energía a instalaciones y equipos de uso final que suple las necesidades energéticas del comercio, la industria.
Distribución primaria: Se denomina distribución primaria a las redes y estructuras asociadas, generalmente toman energía desde subestaciones de distribución con capacidad suficiente para abastecer zonas geográficas dentro de áreas pobladas
Distribución secundaria: Se denomina distribución secundaria a las redes eléctricas y estructuras asociadas, que toman energía desde transformadores de distribución con capacidad suficiente para uno o varios usuarios

Las dimensiones en mm
- Todos los Elementos son Galvanizados por inmersión en caliente, según ASTM A. 153 - 82
- LA FABRICACIÓN DE BASTIDORES SE HARÁ DE ACUERDO AL REQUERIMIENTO  DEL CLIENTE

FICHA TÉCNICA


Tipo de productoArmado bastidor
ModeloTIPO II MT-66 - MT-67
MaterialFierro
AcabadoGalvanizado en caliente


También Podría Interesarte